auftragsspektrum
leistungsbild
referenzen
porträt
kontakt
download
anfahrt
impressum
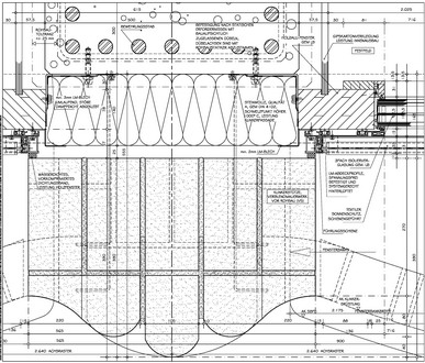
Bremer Landesbank, Bremen Leitdetail Klinkerfassade, H-Schnitt Rohbauanschluss
Bremer Landesbank,
Bremen
Leitdetail
Klinkerfassade, H-Schnitt Rohbauanschluss
zurück weiter
zurück
startseite